Project Description

ON Melo Alves Building

Technical Data

Location: São Paulo – SP, Brazil

Type of Construction: Mixed use building

Site area: 1.587 m²

Building area: 13.320 m²

Project Beginning: 2018

Construction completion: 2023

Team

Authors: Fernando Forte, Lourenço Gimenes, Rodrigo Marcondes Ferraz

Coordinators: Daniel Paranhos, Gabriel Mota, Sonia Gouveia

Contributors: Ana Orefice, Ciro Dias, Fabiana Kalaigian, François Caillat, Franciele Almeida, Gilberto Sales, Guilherme Canadeu, Guilherme Prado, João Baptistella, Letícia Gonzalez, Luiz Santini, Pedro Mauger, Talita Broering, Victor Lucena

Interns: Caio Caccaos, Giovanna Custódio, Henrique Dias, Mariana Sarto, Michelle Vasques, Raquel Gregorio

Photographer: Fran Parente

Real estate Developer: Vitacon

Constructor: Rocontec

Landscape designer: Tagü

Lighting designer: Castilha

We are in the middle of Avenida Rebouças, an area of São Paulo that has been experiencing a great surge in densification and verticalization. In this stretch near Paulista Avenue, the abundant supply of public transport, with two subway lines and a bus corridor, the large hospital complex of Clínicas and the wide diversity of uses, the neighborhood is configured as a dynamic and thriving space in the metropolis.

Because of all this, having a plot with two fronts (one facing Rebouças Avenue and the other facing Melo Alves Street) represents a great opportunity to create more urban connections and enhance urban life with public and commercial spaces. The ON project began with this reflection: how could the first floor of the building be transformed into an urban space, open and connected to the two streets? The narrow 12m opening onto Rua Melo Alves is a challenge, but not an obstacle. There, a commercial space activates the sidewalk and indicates the beginning of a passage that leads to Rebouças Avenue. On the avenue, meanwhile, the wide front allows for more commercial uses and a small, covered square that slows down the pace of those coming from Rebouças Avenue. The hall of the residential tower is above this small square, displaced from the first floor and thus giving way to the public.

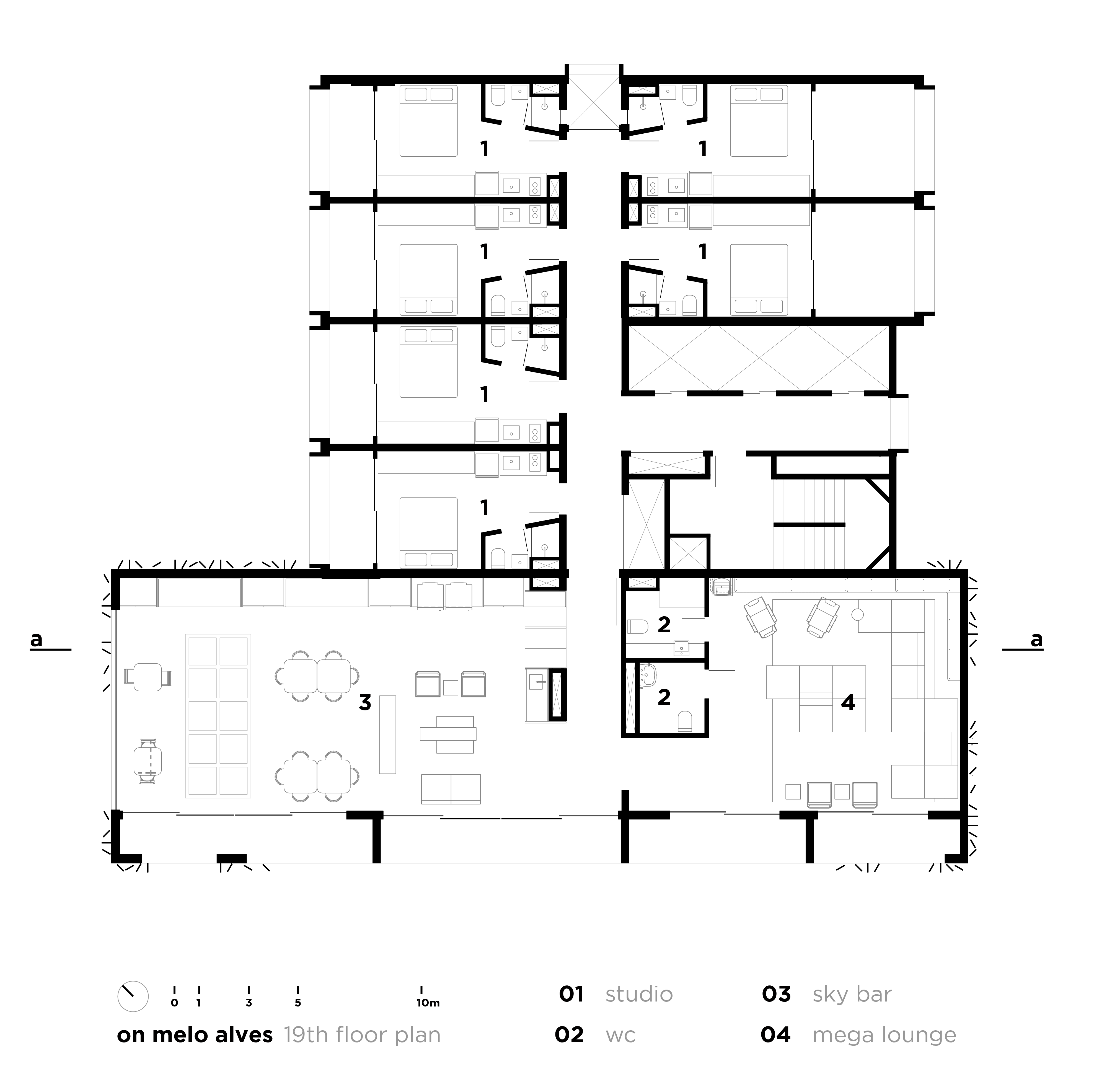
Above this permeable and dynamic first floor is a huge tower of small apartments. Some of them are intended for use as temporary rentals, such as a hotel. The other units, of a similar size, in studio format. As there are many apartments and they all are small, it was a natural choice to take advantage of the repetition and rhythm of the openings in the volume. Thus, the succession of openings in the main volume, marked by moldings, allows the program to be read.

The tower rises to a height of around 90m. As a result, the progressive lateral distances imposed by the law require smaller floors in the higher sections of the building. In response, the project envisages three volumes that grow transversely. As a result, the area lost by the lateral distancing is recovered, while at the same time it creates a clear formal break in the tower’s homogeneity. These large horizontal blocks, covered in shading elements, challenge the language of what is imagined for a residential building. With this, we have a remarkable and original building in the avenue landscape.

The horizontal blocks are made possible by a conventional reinforced concrete structure, even considering the large overhang of an unusual 7.5m. There is no prestressing or use of hybrid or mixed techniques with steel, but we had the challenge of making shoring feasible due to the proposed geometry.

Therefore, we have a building that, despite being a large object in the urban landscape, is a picturesque and daring element. And on the pedestrian scale, we have a permeable, human, generous building. The duality between these two scales is something valuable in this project.

Isometric

Ground floor plan

19th floor plan

Section