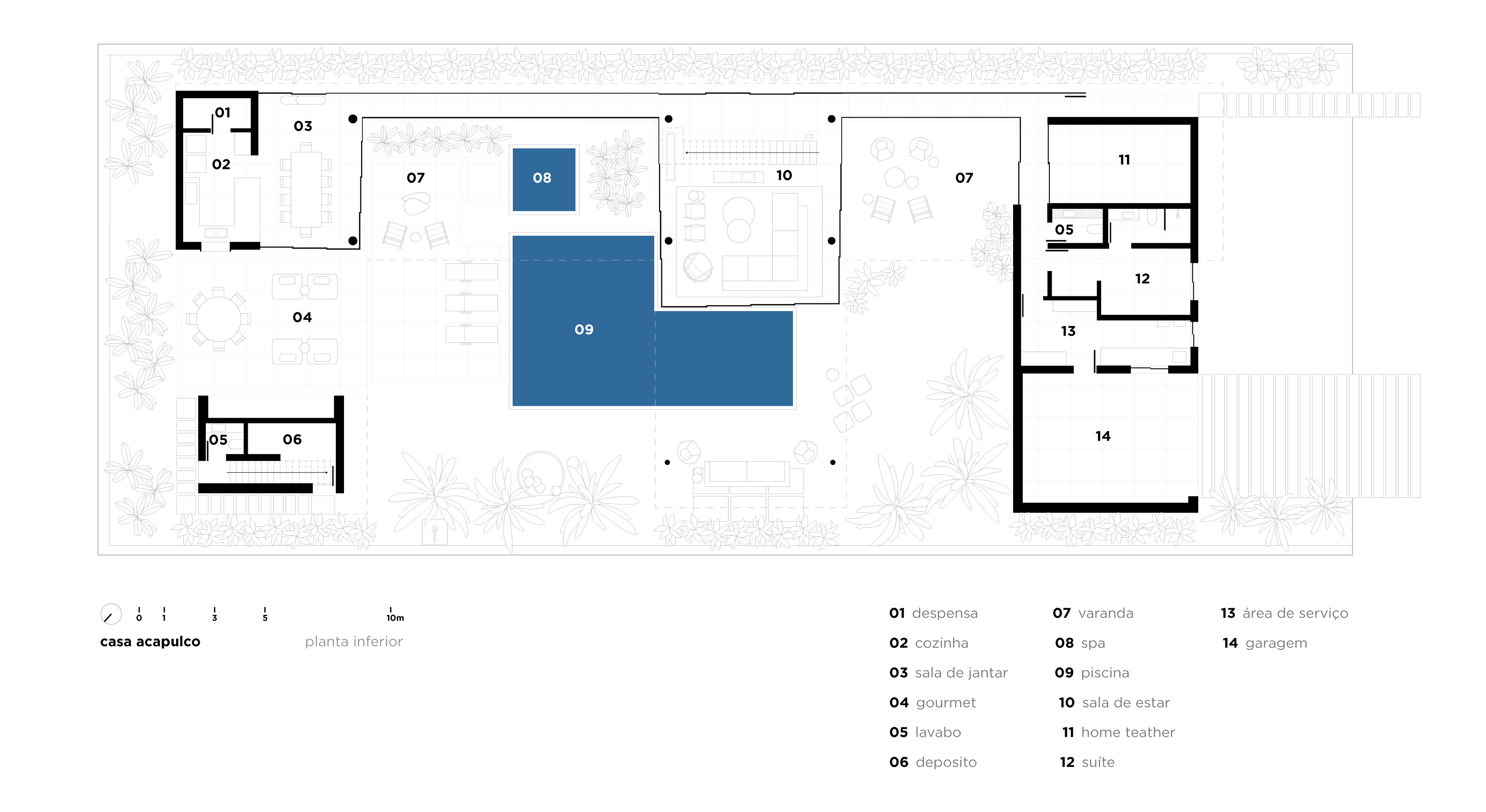
Casa
ACAPULCO
GUARUJÁ - SP
Ficha técnica
Área do terreno - 1.020m²
Área construída - 800m²
Início do projeto - 2018
Conclusão da obra - 2021
Área construída - 800m²
Início do projeto - 2018
Conclusão da obra - 2021
Equipe
Autores - Fernando Forte, Lourenço Gimenes, Rodrigo Marcondes Ferraz
Gerentes - Desyree Niedo, Gabriel Mota, Sonia Gouveia
Coordenadores - João Baptistella
Colaboradores - Bárbara Dolabella, Beatriz Brandt, Cintia Reis, Felipe Fernandes, Guilherme Prado, Guilherme Pulvirenti, Karina Nakaura, Mariana Lazero, Pedro Ocanhas, Victor Lucena, Vitória Colsato
Estagiários - Giulia, Lorenzi, Mariana Sarto, Matheus Soares, Michelle Vasques
Fotógrafo - Fran Parente
Construtora - Orus Construções
Paisagista - Juliana Freitas
Lighting designer - Castilha