Casa
CUMARU
BARUERI - SP
Ficha técnica
Área do terreno - 730m²
Área construída - 1.275m²
Início do projeto - 2018
Conclusão da obra - 2020
Área construída - 1.275m²
Início do projeto - 2018
Conclusão da obra - 2020
Equipe
Autores - Fernando Forte, Lourenço Gimenes, Rodrigo Marcondes Ferraz
Gerentes - Gabriel Mota e Sonia Gouveia
Colaboradores - André Grippi, Ana Carolina Baptistella, Bruno Barone, Beatriz Brandt, Caio Armbrust, Cintia Reis, Daniel Guimarães, Daniela Zavagli, Desyree Niedo, Felipe Fernandes, Franciele Almeida, François Caillat, Guilherme Prado, Guilherme Pulvirenti, Letícia Gonzalez, Mariana Lazero, Philippe Metropolo, Victor Lucena
Estagiários - Beatriz Cambur, Giovanna Custódio, Giulia Lorenzi, Guilherme Braga, Henrique Dias, José Carlos Navarro, Marina Almeida, Matheus Soares, Michelle Vasques, Raquel Gregorio
Fotógrafo - Fran Parente
Construtora - RMR
Paisagista - Daniel Nunes
Lighting designer - Castilha
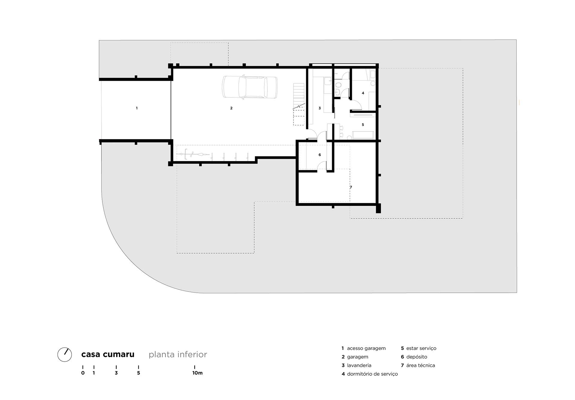
Áreas sociais no pavimento térreo, garagem no subsolo e quartos no andar superior. Uma varanda e uma piscina. A descrição do programa básico desta residência e sua distribuição como a de um sobrado comum é incapaz de explica-la sem que sua concepção estrutural seja descrita. Uma sequência de quatro pórticos pendura o volume do andar superior, fazendo com que o pavimento térreo seja apenas um leve fechamento de vidro. De um lado da estrutura os pórticos são formados por quatro pilares em concreto. Do outro, apenas dois pilares sustentam uma grande treliça metálica, com 22 m de comprimento, que sustenta as quatro vigas em concreto sobre a laje de cobertura, responsáveis por suspender toda a casa. Esta estrutura principal, mista de concreto e aço, abriga todo o programa das áreas internas da residência, além de cobrir uma varanda com pé-direito duplo e parte da piscina.
O programa estendido é formado por salas, cozinha, varanda e sauna no pavimento térreo, garagem, áreas de serviço e áreas técnicas no subsolo e quatro suítes, escritório e home theater no superior. Além do sistema estrutural e dos grandes painéis de vidro, a madeira é elemento de grande destaque nesta casa, aparecendo na forma de revestimento ripado de madeira cumaru no andar superior, portas do tipo camarão nos quartos, brises móveis sobre a piscina, deck de madeira na varanda e madeira carbonizada no espaço gourmet.
A leveza e transparência da casa permite total integração entre o dentro e fora, entre a construção e o paisagismo. Não há limite claro entre o construído e o natural, as plantas ora invadem a casa, ora estão apenas separadas das áreas internas por leves painéis de vidro. Ora compõem a paisagem externa, ora estão cobertas pela grande laje ao lado da piscina, formando um conjunto coeso formado por concreto, aço, vidro, madeira, água e vegetação.
O programa estendido é formado por salas, cozinha, varanda e sauna no pavimento térreo, garagem, áreas de serviço e áreas técnicas no subsolo e quatro suítes, escritório e home theater no superior. Além do sistema estrutural e dos grandes painéis de vidro, a madeira é elemento de grande destaque nesta casa, aparecendo na forma de revestimento ripado de madeira cumaru no andar superior, portas do tipo camarão nos quartos, brises móveis sobre a piscina, deck de madeira na varanda e madeira carbonizada no espaço gourmet.
A leveza e transparência da casa permite total integração entre o dentro e fora, entre a construção e o paisagismo. Não há limite claro entre o construído e o natural, as plantas ora invadem a casa, ora estão apenas separadas das áreas internas por leves painéis de vidro. Ora compõem a paisagem externa, ora estão cobertas pela grande laje ao lado da piscina, formando um conjunto coeso formado por concreto, aço, vidro, madeira, água e vegetação.