corujas
São Paulo - SP
Ficha técnica
Área do terreno - 3.470m²
Área construída - 6.880m²
Início do projeto - 2012
Conclusão da obra - 2014
Área construída - 6.880m²
Início do projeto - 2012
Conclusão da obra - 2014
Equipe
Autores - Fernando Forte, Lourenço Gimenes, Rodrigo Marcondes Ferraz
Gerentes - Ana Paula Barbosa, Marilia Caetano, Sonia Gouveia, Renata Davi
Colaboradores - Gabriel Mota, Juliana Nohara
Estagiários - Rodrigo de Moura, Bruno Milan, Felipe Bueno, Gabriel Ribeiro, Marina Almeida
Fotógrafo - Rafaela Netto
Incorporadora - Idea!Zarvos
Paisagista - André Paoliello
Lighting designer - Franco e Fortes
Comunicação Visual - Nitsche Associados
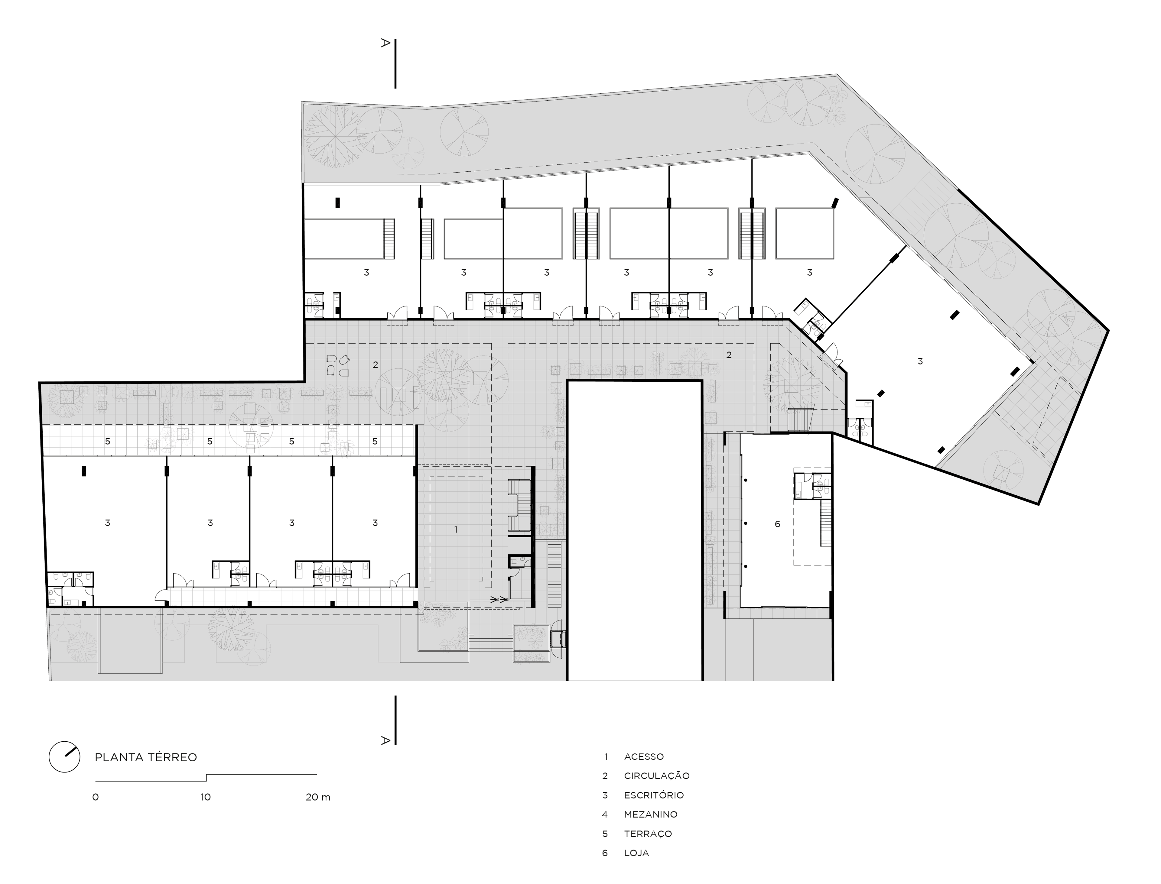
O Edifício Corujas, localizado na Vila Madalena, é um edifício de escritórios de diversos tamanhos e formatos. A proposta para essa edificação é a de criar um espaço mais humanizado para o trabalho, indo na contramão dos tradicionais cubos de vidro espelhado localizados em regiões de São Paulo como Avenida Faria Lima ou Avenida Berrini.
O gabarito do local, de apenas nove metros, nos levou a uma solução horizontal, e o formato do lote, a desmembrar o prédio em duas edificações, frontal e posterior. O ponto de partida do projeto surgiu do desejo de criar uma arquitetura que possibilitasse que os escritórios tivessem, além de suas áreas fechadas, espaços avarandados generosos para reuniões externas, e jardins próprios, privativos.
Para tanto utilizamos alguns recursos como: tetos jardins, grandes panos envidraçados, generosos vãos e varandas pouco convencionais. Os conjuntos localizados no nível térreo tratam-se de escritórios com pé direito duplo, aproveitando a inclinação natural do terreno. Assim o visitante chega através de um mezanino e pode descer para a área principal de trabalho, onde há varanda e seu jardim privativo no recuo posterior, local onde já existem árvores frutíferas originais do local. A construção no térreo possui um determinado volume que denominamos “embasamento”, e este volume chega a encostar-se aos limites dos vizinhos e é mais largo do que o restante da construção. Para intensificar essa diferenciação, esse nível é todo envelopado em madeira.
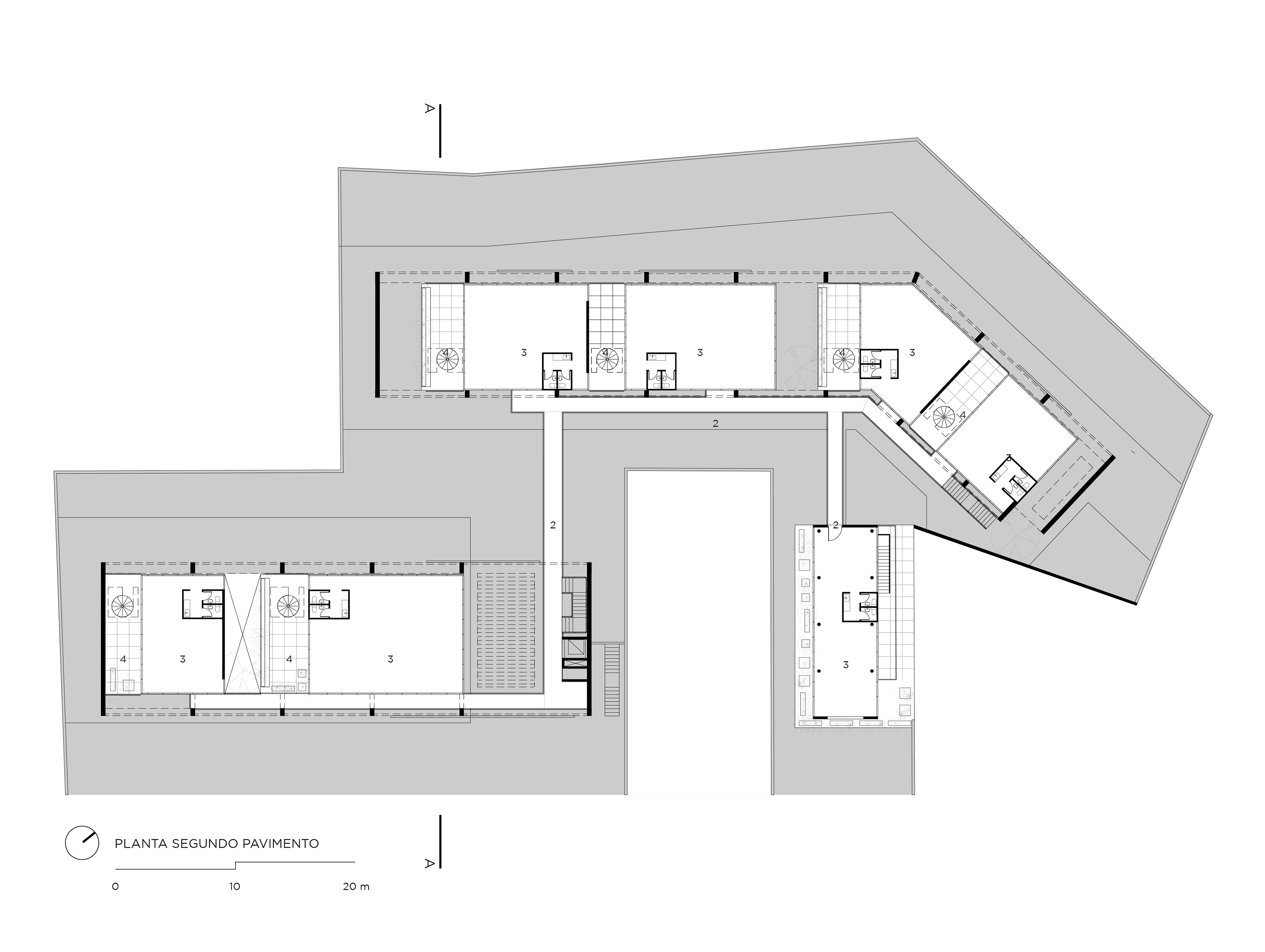
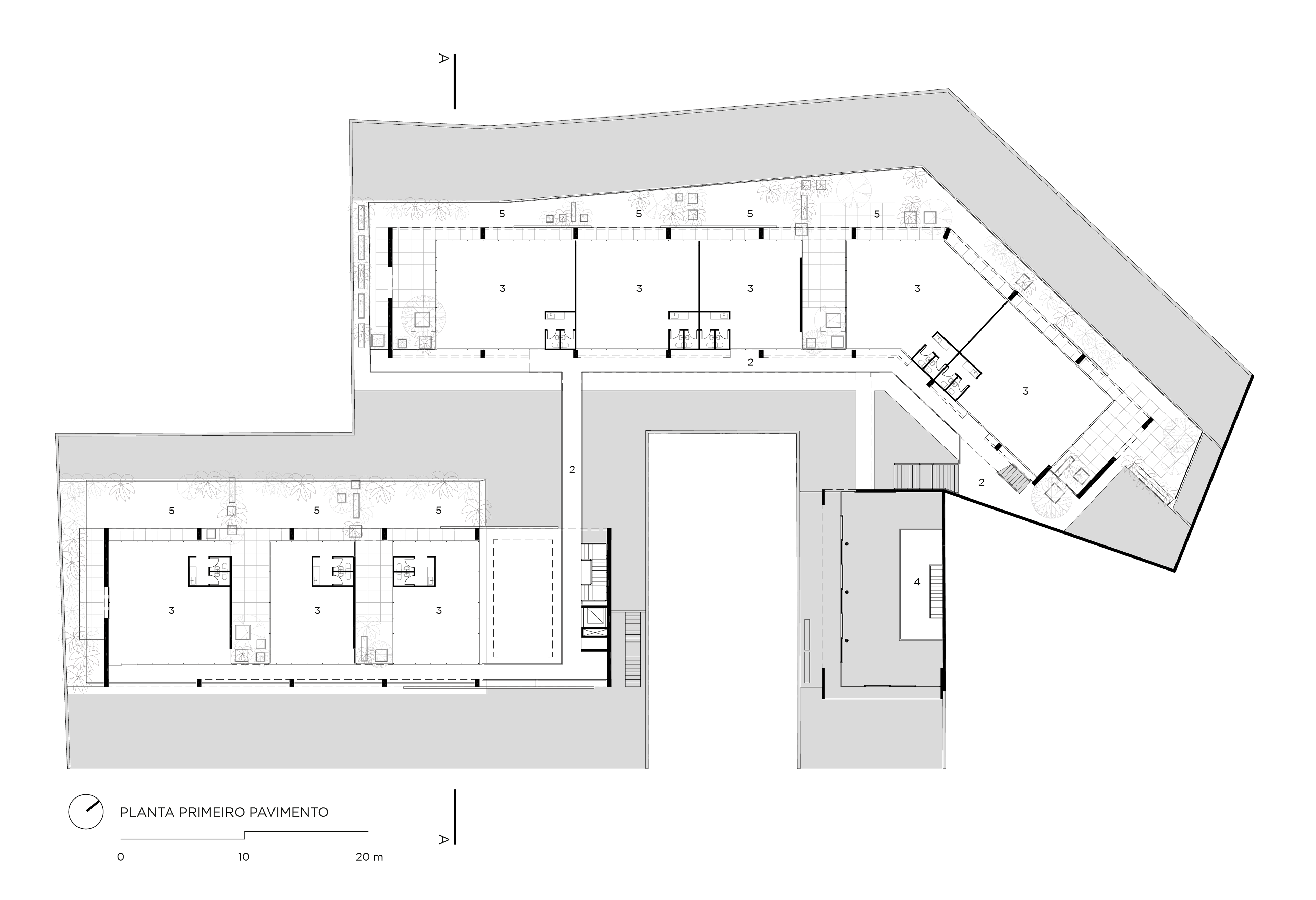
Os andares acima do embasamento não chegam às divisas, e são menores que o andar inferior. Nestes trechos optamos por deixar a estrutura de concreto pré-moldada aparente, e no piso intermediário, que é realizado em estrutura metálica, a estrutura aparente em branco. Todo esse trecho é totalmente envidraçado, contrastando com o fechamento do embasamento, muito mais opaco. Sobre os trechos do embasamento que são maiores do que os pavimentos superiores surgem tetos jardins que são os jardins privativos dos escritórios do primeiro pavimento. Já as grandes varandas, ora com pé direito simples, ora com pé direito duplo surgem entre conjuntos, em meio aos pilares pré-moldados.
Já o último andar possui o mesmo sistema de varandas do pavimento inferior, mas nestas varandas existem escadas metálicas independentes de acesso à cobertura. Essa cobertura funciona como um teto jardim privativo de cada um dos conjuntos do segundo pavimento, possibilitando que mesmo os andares mais altos possam desfrutar de jardins próprios.
Os mecanismos de organização descritos acima permitiram uma espacialidade muito própria, rara em edifícios de escritórios em São Paulo. Essa espacialidade nos parece extremamente adequada para o clima de São Paulo e em especial ao local, no bairro boêmio e cultural da Vila Madalena, em que a escala do pedestre e o convívio entre as pessoas está em primeiro plano. Há na edificação, no intuito de reforçar essas questões, muitas áreas de convívio, bicicletário, vestiários comuns e até um café para que os usuários se conheçam e possam inclusive trabalhar nas áreas comuns, criando quase uma micro comunidade. É o total oposto dos modernos prédios de escritório, que segregam ao máximo os usuários uns dos outros.
O aspecto construtivo também é outro aspecto interessante dessa edificação. Embora se trate de um edifício de escritórios de altíssimo padrão, ele foi concebido em uma estrutura de pré-moldados de concreto, que em quase toda construção é deixado aparente. É uma forma de afirmar que o material pré-moldado pode ser tão interessante quanto qualquer outro. Há também grandes trechos em estrutura metálica, também aparentes, que deixam o andar intermediário surpreendente leve na edificação, quase como se tivesse repousado ali. Essa estrutura metálica, em conjunto com caixilhos piso teto com grandes aberturas e leves brises metálicos formam uma espécie de miolo, de recheio transparente da estrutura pré moldada que poderá ser observado da rua pelo visitante, fazendo com que a dinâmica do que ocorre dentro do prédio participe do cotidiano do bairro.