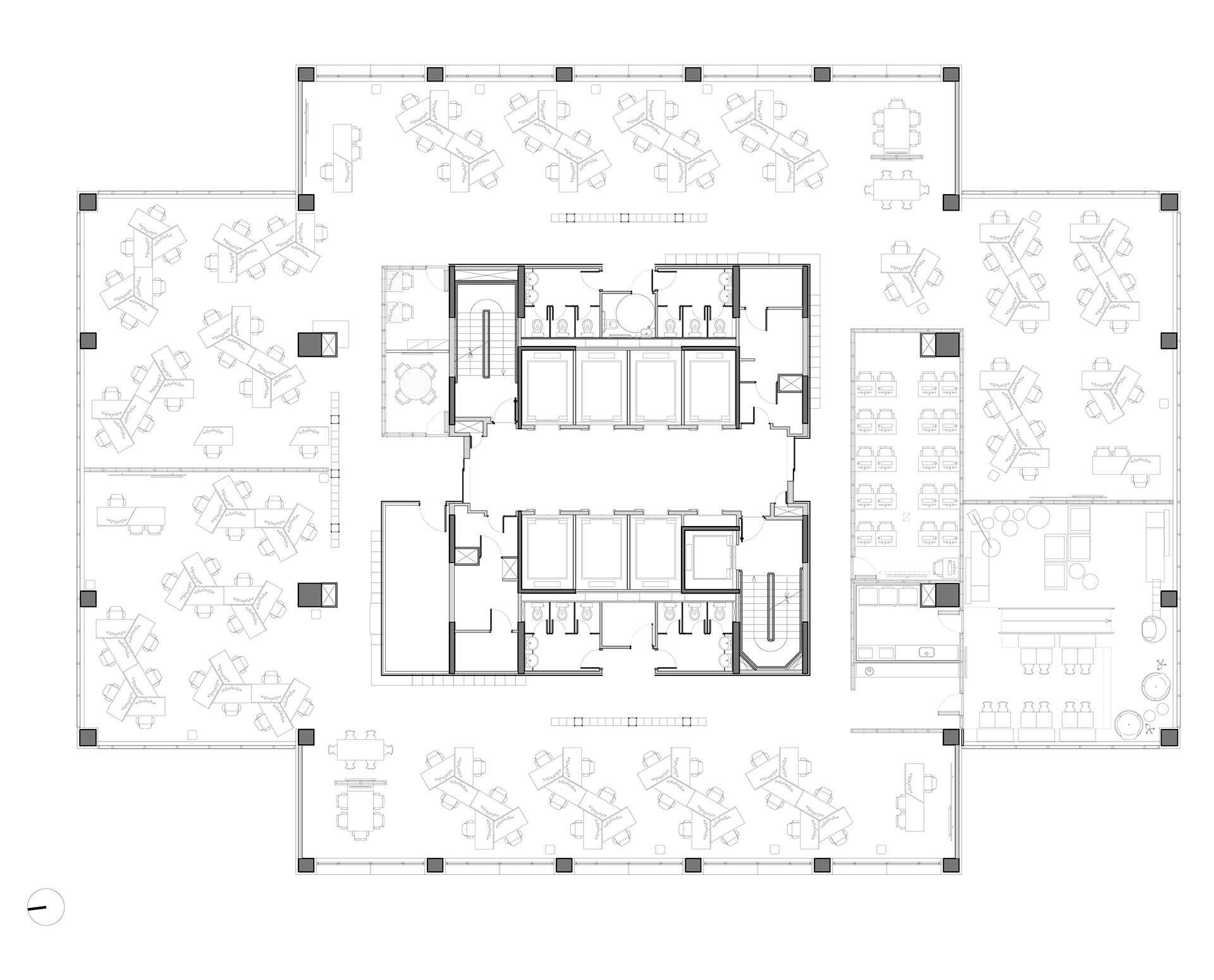
EMPRESA DIGITAL ITAÚ
São Paulo - SP
Ficha técnica
Área construída - 3.730m²
Início do projeto - 2017
Conclusão da obra - 2018
Início do projeto - 2017
Conclusão da obra - 2018
Equipe
Autores - Fernando Forte, Lourenço Gimenes, Rodrigo Marcondes Ferraz
Gerentes - Gabriel Mota, Sonia Gouveia
Colaboradores - Alessandra Musto, Ana Orefice, Beatriz Brandt, Carolina Magliari, Daniela Zavagli, Desyree Niedo, Eduardo Vale, Felipe Fernandes, Juliana Cadó, Mariana Lazero, Mariana Leme, Priscylla Hayashi, Rafael Saito
Estagiários - Aryane Diaz, João Baptistella
Fotógrafo - Fran Parente
Construtora - PBA Engenharia, Foco Engenharia
Paisagista - Rodrigo Oliveira
Lighting designer - Castilha