EXPOGRAFIA
JAPÃO EM MINIATURAS
São Paulo - SP
Ficha técnica
Início do projeto - 2023
Conclusão da obra - 2023
Conclusão da obra - 2023
Equipe
Autores - Fernando Forte, Lourenço Gimenes, Rodrigo Marcondes Ferraz, Gabriel Mota
Gerentes - Gabriel Faria
Colaboradores - Carolina Hirata, Lucas Lima, Victor Lucena
Fotógrafo - Victor Lucena
Execução - Equipe Japan House São Paulo
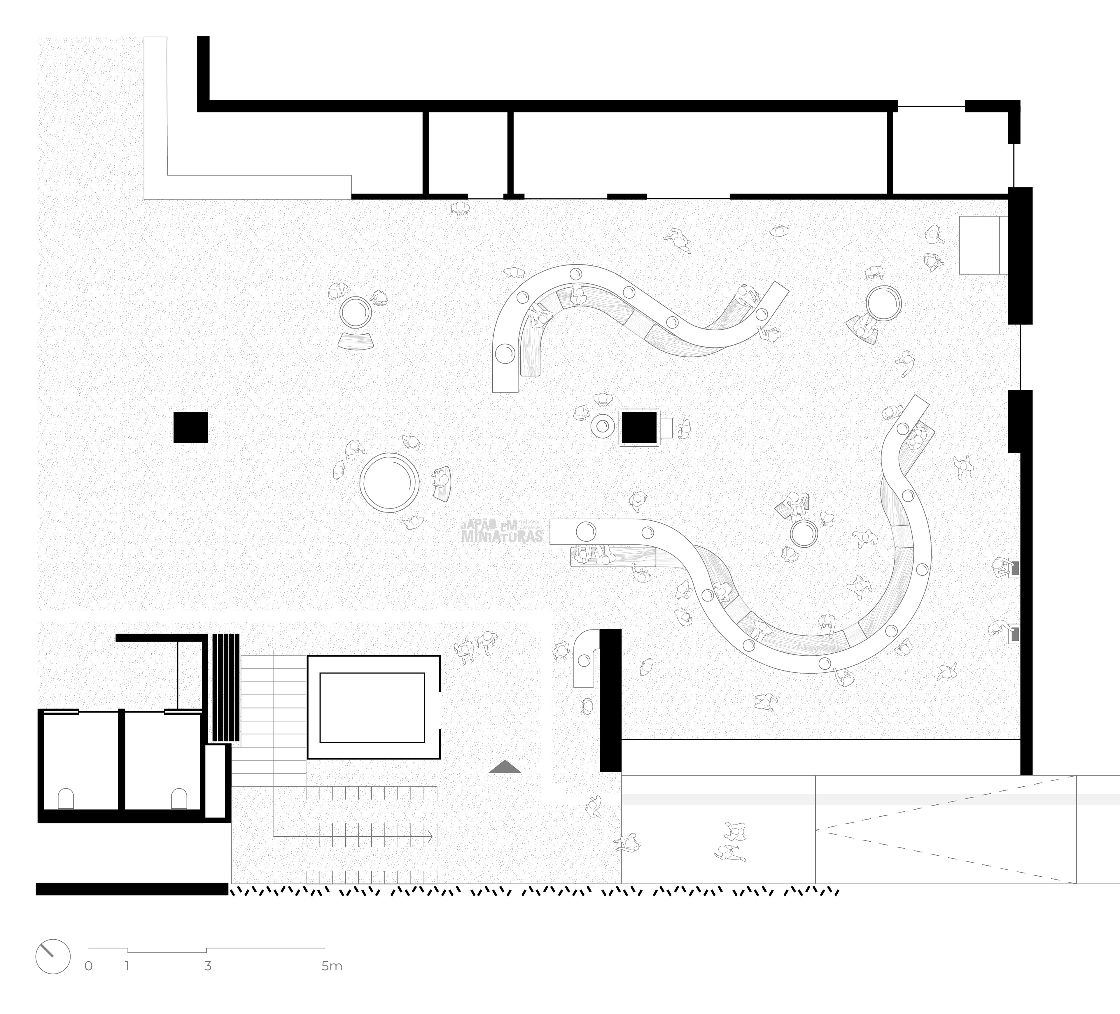
A obra do artista japonês Tasuya Tanaka é um universo em miniatura, onde cada detalhe ganha vida. Suas esculturas minúsculas ganham destaque merecido sob as cúpulas dispostas em duas bancadas curvas que capturam o olhar e permitem que os visitantes circulem ao redor de cada peça. As peças repousam sobre bases giratórias, deixando-as em um movimento contínuo. Pontos estáticos de iluminação criam uma transformação constante nas sombras das esculturas, sugerindo ao visitante uma pausa para a contemplação da tridimensionalidade completa de cada obra sob diferentes perspectivas.
Algumas peças maiores recebem displays individuais, proporcionando um foco especial para as obras mais imponentes. E, tornando a visita ainda mais interativa, as peças podem ser vistas de alturas diferentes, graças aos bancos curvos que se entrelaçam com as bancadas.
Além da fluidez do espaço, a simplicidade do desenho dos expositores foi o ponto de partida. Eles são esbeltos, com linhas finas e brancas, criados para não competir com as esculturas detalhadas e coloridas de Tanaka.