GIRASSOL
São Paulo - SP
Ficha técnica
Área do terreno - 1.200m²
Área construída - 4.475m²
Início do projeto - 2018
Conclusão da obra - 2021
Área construída - 4.475m²
Início do projeto - 2018
Conclusão da obra - 2021
Equipe
Autores - Fernando Forte, Lourenço Gimenes, Rodrigo Marcondes Ferraz
Gerentes - Daniel Paranhos
Colaboradores - Carolina Ferraz, Fernanda Moura, Kaila Bissolotti, Paula Schenini, Tânia Rodriguez, Thais Fuchs, Victor Lucena
Estagiários - Caio Caccaos, Giancarllo Bruno, Izabela Salgado, Patrícia Carvalho
Fotógrafo - Fran Parente
Incorporadora - 3Z Realty
Construtora - Exemplar
Paisagista - Gabriella Ornaghi
Lighting designer - Castilha
O prédio de escritórios não pode mais ser entendido como uma torre de vidro genérica numa avenida impessoal. Muitas pessoas passam um tempo precioso de suas vidas no escritório, e as empresas tem reconhecido que a qualidade do espaço é um dos principais fatores de bem-estar, satisfação, retenção e produtividade.
Assim, o espaço de trabalho, nos últimos anos, vem se transformando, cada vez mais, num espaço onde as pessoas queiram estar: agradável, aberto, ventilado. Com espaços que permitam, além do trabalho convencional, a descontração, o encontro, o debate e, portanto, tornem o ato de trabalhar algo mais prazeroso e eficiente. Com a possibilidade de se ter o verde ao alcance das mãos, em terraços onde se podem fazer reuniões e descansar, mas também de ter o verde generosamente aberto para a cidade, que se torna mais atraente e humana.
No edifício Girassol, da 3Z Realty e da Exemplar Construções, a ideia foi aproveitar um lote onde não se podia fazer uma torre de vidro genérica para fazer um prédio fora do comum. A rua inclinada, o endereço nada corporativo de um bairro boêmio e o limite de altura imposto pediam um prédio de escritórios que fosse único e (por que não?) um prédio anti-corporativo.
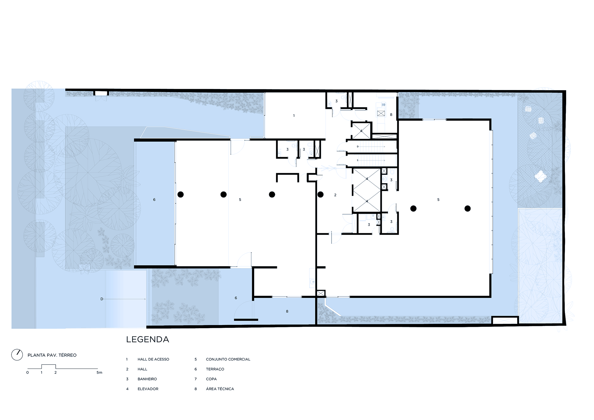
Aproveitando a topografia, que cria uma acentuada queda ao longo da testada do lote, o acesso de pedestres se dá pelo ponto mais alto, nivelado com a calçada e promovendo um eixo transversal de acesso para o hall. A garagem, acessada pelo ponto mais baixo, tem um acesso facilitado para os automóveis, ao mesmo passo em que evita parte das escavações. Entre esses dois acessos de naturezas distintas, um jardim aberto para a cidade acomoda o desnível de forma delicada. O pavimento térreo, com seu largo terraço, se debruça sobre esse jardim, anunciando os principais elementos que se repetem ao longo da torre.
A volumetria geral assume uma complexidade na medida da qualidade dos espaços que pretendíamos criar: os pavimentos são como grandes paralelepípedos desencontrados, formando terraços com qualidades únicas: uns cobertos, outros descobertos; com dimensões e pés direitos variados; com áreas de permanência e com jardins pujantes. Ao mesmo tempo, essa aparente desorganização do volume permite a leitura de um objeto menos vertical, mais atrelado à escala do usuário, mais amigável para quem caminha na rua e enxerga não apenas o jardim do térreo, mas também esses verdes flutuantes numa paisagem urbana usualmente cinza. Para quem usa ou para quem passa em frente, o edifício se propõe como um aliado, como um elemento amigável.
Por causa dessa volumetria tão incomum, decidimos simplificar outras coisas. O sistema construtivo é o concreto aparente, que além de segurar o prédio em pé, funciona como parede e como acabamento. Um único material, duro e com aberturas bem recortadas na sua massa, dá conta de resolver a construção e oferece um instigante contraste com a organicidade da vegetação. Mas, como toda regra tem uma exceção, rompemos o binário concreto-vegetação com um antagonista. O terceiro pavimento, ao contrário de seus colegas solidamente apoiados uns sobre os outros, surge desafiadoramente pendurado. O ousado balanço de 7m é resolvido com uma estrutura metálica e um diáfano revestimento de policarbonato que confere a ele leveza e uma dose de displicência.