Casa
COLINA
Porto Feliz - SP
Ficha técnica
Área do terreno - 2.830m²
Área construída - 810m²
Início do projeto - 2018
Conclusão da obra - 2019
Área construída - 810m²
Início do projeto - 2018
Conclusão da obra - 2019
Equipe
Autores - Fernando Forte, Lourenço Gimenes, Rodrigo Marcondes Ferraz
Gerentes - Gabriel Mota, Juliana Cadó, Luciana Bacin
Colaboradores - Ana Orefice, Amanda Domingues, Caio Armbrust, Desyrée Niêdo, Eduardo Vale, Fabiana Kalaigian, Gilberto Sales, João Baptistella, José Carlos Navarro, Julio de Luca, Karina Nakaura, Lívia Veroni, Mariana Leme, Priscylla Hayashi, Thiago Costa, Victor Lucena
Estagiários - Aryane Diaz, Giovanna Custódio, Matheus Soares, Raquel Gregorio, Mariana Sarto
Fotógrafo - Fran Parente
Construtora - Citycon
Paisagista - Gabriela Ornaghi
Ao avaliarmos para o cliente três possíveis terrenos para construção de sua residência, nos chamou atenção este lote com situação de esquina, insolação interessante e leve desnível deste terreno, e o conceito do projeto surgiu rapidamente.
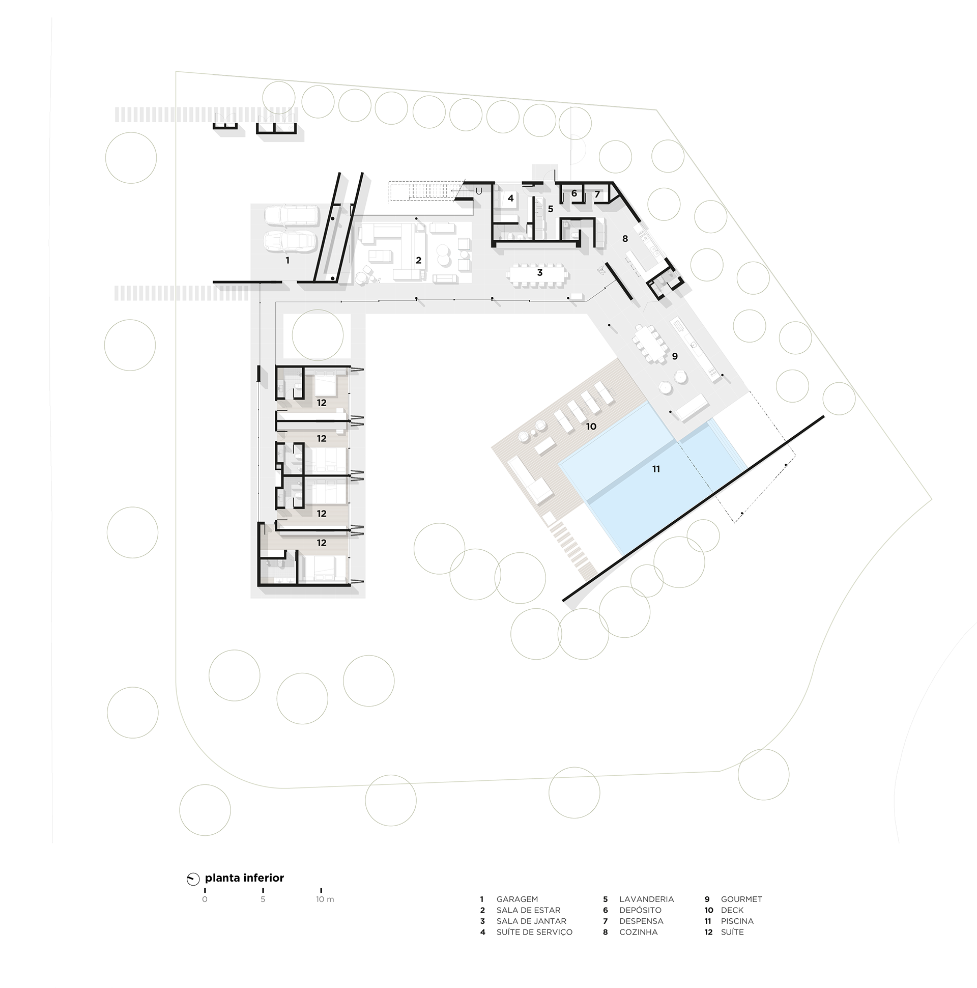
A proposta parte de conceitos simples - uma organização perimetral, predominantemente térrea, acompanha o peculiar formato do terreno e seus recuos obrigatórios, gera um pátio semi interno rebaixado em relação a rua para garantir privacidade sem perder a relação com áreas externas e ruas. O formato resultante, em uma espécie de letra “U” garante contato visual entre todos os ambientes térreos.
O cerne do projeto é a criação de uma extensa e delgada laje que, inclinada, se funde ao terreno possibilitando que este continue sobre a construção criando um extenso teto jardim. Uma laje de piso que acompanha a laje de cobertura reforça a presença da construção e separação do objeto construído com o jardim. Sob a laje em concreto aparente o programa se organiza de forma linear ao longo do perímetro.
A setorização é reforçada por materiais diferentes de vedação; a área social e lazer é envidraçada ou aberta, a ala de hóspedes possui tratamento em madeira que quando fechada se transforma em um bloco monolítico sob a laje e as áreas de serviço tem fechamento em fachada ventilada ebanizada. Sobre a laje encontra-se apenas a suíte principal, que tem um tratamento de vedação que dá continuidade através da escada com os elementos opacos do andar térreo. Este pequeno volume no andar superior, em meio ao teto jardim possui grandes aberturas e funciona como um elemento que está ora estanque, ora completamente escancarado para as vistas. Garagem, jardim e hall de entrada são como negativos sob a laje, que em balanço ou com rasgos recobre os ambientes delicadamente.
O projeto é também um ensaio de mínimo impacto no lote, que parece intocado em uma foto aérea em comparação a vizinhança - além do jardim, apenas piscina, solário, quadra de areia e algumas placas solares são de fato visíveis do alto, em uma espécie de “footprint” mínimo. A grande cobertura verde da laje propicia grande conforto térmico, e as extensas aberturas de vidro que possibilitam ventilação cruzada auxiliam no desempenho energético da edificação.
O uso de um “jardim suspenso” acessível em rampa que recobre o extenso programa da casa a tornou um espaço que é ao mesmo tempo muito integrado entre si e um pouco discreto do olhar externo propiciando uma dinâmica de uso que vinha de encontro aos desejos dos moradores. Acertos no terreno com um muro de arrimo em pedra e um extenso morrote lateral finalizam a composição e acertos do objeto no terreno, em um ensaio de fusão do lote com a arquitetura.
O projeto de interiores minimalista, com mix de designers nacionais e internacionais, também realizado pelo escritório complementa a casa e permite desde o uso informal e lazer, que eram os objetivos principais, até eventos um pouco mais formais.