Casa
HEINEMANN
SÃO PAULO - SP
Ficha técnica
Área do terreno - 274m²
Área construída - 285m²
Início do projeto - 2019
Conclusão da obra - 2024
Área construída - 285m²
Início do projeto - 2019
Conclusão da obra - 2024
Equipe
Autores - Fernando Forte, Lourenço Gimenes, Rodrigo Marcondes Ferraz
Gerentes - Desyree Niedo, Gabriel Mota, Sonia Gouveia
Coordenadores - Felipe Fernandes, João Baptistella, Letícia Gonzalez, Philippe Metropolo, Guilherme Prado
Colaboradores - Bárbara Dolabella, Bruno Suman, Daniela Zavagli, Everton Penariol, François Caillat, Gabriel Lunardi, Guilherme Leite, Guilherme Pulvirenti, Izabela Veloso, Maíra de Benedetto, Mariana Sarto, Nathalia Gaddini, Renan Rinaldi, Tais Arevalo, Victor Lucena
Estagiários - Flávia Moura, Giovanna Pirovani, Giovanna Custodio, Henrique Dias, Lucas Paiva
Fotógrafo - Fran Parente
Construtora - CPA Engenharia e Construções
Paisagista - Gil Fialho Paisagismo
Lighting designer - Castilha Iluminação
Uma casa aberta e integrada ao jardim, com espaços fluidos e generosos. A descrição parece razoável, não fosse o desafio de projetar num terreno de apenas 280m². Situado em São Paulo, num bairro com muito verde, o terreno retangular e fino foi aproveitado em toda a sua extensão. Concentrada na porção esquerda do lote, geminada à construção vizinha, liberamos a porção direita como um jardim linear que conduz os visitantes diretamente até o fundo da casa, onde concentramos as áreas sociais e uma porção mais ampla de jardim. Este percurso acontece num piso elevado e cercado de jardim e espelho d'água rebaixados, dando a sensação de que a casa flutua ao longo do jardim vertical que ocupa o muro direito todo.
Uma sequência de pórticos em estrutura de madeira criam um ritmo no percurso, fazendo da madeira um material presente desde a entrada do visitante. Leves e espaçados, soltos do volume principal da casa, fazem parte tanto da casa quanto do jardim, definindo o percurso como um espaço de transição entre o dentro e o fora da casa. Tratam-se de elementos de MLC que, por ficarem expostos a intempéries, recebem uma capa de sacrifício também em madeira. O contraventamento dos pórticos é feito em hastes de aço, o que permite que a solução estrutural seja uma parte fundamental da linguagem arquitetônica da casa.
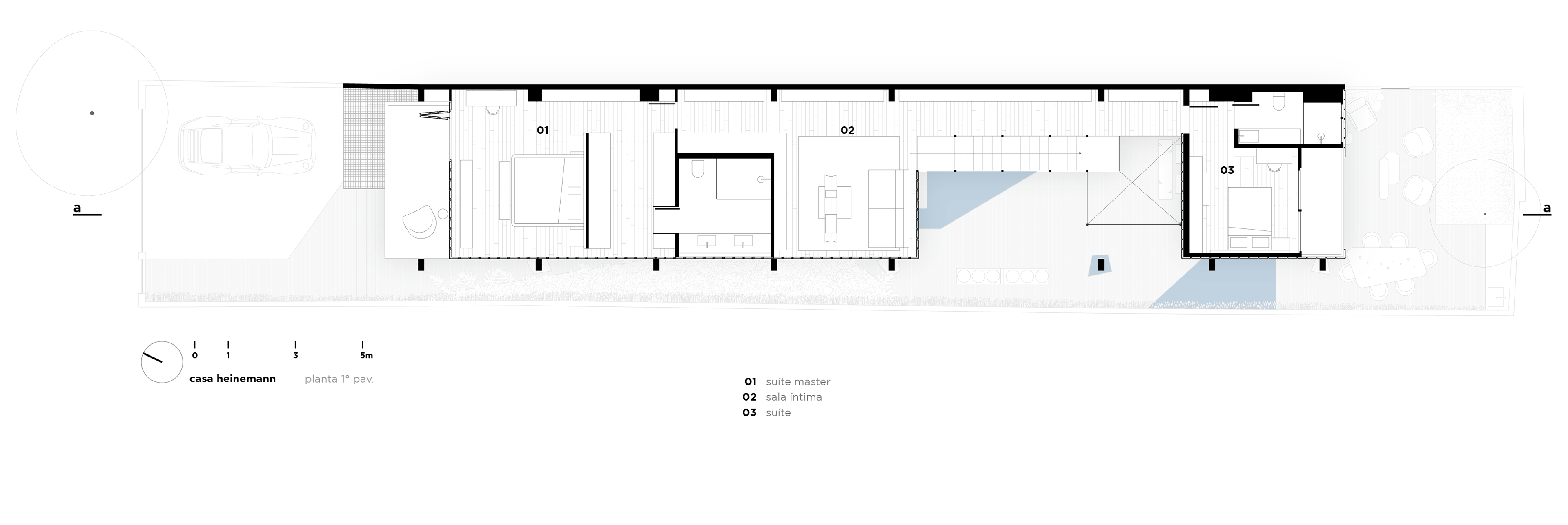
Os pórticos seguem por cima da casa e apoiam-se junto a uma parede de concreto aparente, que define o limite com o vizinho da esquerda. Os elementos de MLC são complementados com lajes CLT nos dois pavimentos superiores da casa. Tratadas para ficarem aparentes, as lajes ressaltam o sistema construtivo em quase todos os ambientes da casa.
Composta de 3 pavimentos, o último pavimento acomoda um espaço de lazer com um spa na altura das árvores da rua. Protegido da insolação por um cobogó metálico, este pavimento se apoia sobre o pórtico de madeira e constitui um elemento à parte dos dois pavimentos logo abaixo.
A madeira neste projeto foi usada de maneira a ressaltar a leveza estrutural e também sua bela característica de cor e textura.