JAPAN HOUSE
São Paulo - SP
Ficha técnica
Área construída - 9.900m²
Início do projeto - 2015
Conclusão da obra - 2017
Início do projeto - 2015
Conclusão da obra - 2017
Autores - Kengo Kuma, Fernando Forte, Lourenço Gimenes, Rodrigo Marcondes Ferraz
Gerentes - Gabriel Mota, Sonia Gouveia
Colaboradores - Alessandra Musto, Desyree Niedo, Fernanda Veríssimo, Joel Bages, Mariana Leme, Talita Broering, Tatiane Garcia, Wanessa Simoe
Estagiários - Isabel Ventre, Pedro Ocanhas, Rafael Colombo
Fotógrafo - Rafaela Netto
Construtora - TODA Construtora
Paisagista - Alex Hanazaki
Lighting designer - Castilha
O projeto é uma parceria Kengo Kuma + FGMF.
Centrado na figura do Japão, do ponto de vista de identidade, mas também traz uma contribuição local, não só através da nossa força de trabalho, mas também através de elementos brasileiros que foram incorporados na arquitetura.
Estruturalmente falando, as maiores intervenções foram a instalação da caixa de escada e elevadores. Com grande trabalho de reforços estruturais, de cortes de elementos para o edifício de concreto armado, que já tem décadas de existência. A premissa foi entender como era a estrutura existente.
A fachada traz uma homenagem à arquitetura modernista brasileira, por meio dos cobogós feitos de concreto com fibra de altíssimo desempenho, fino e resistente ao mesmo tempo. Além disso, a fachada também conta com madeira japonesa, fabricada e montada no Japão e remontada no Brasil, através de uma técnica milenar da cultura oriental, junto com uma tecnologia nova de fibra de carbono.
Um dos desafios do projeto foi garantir conforto térmico à edificação, uma vez que a Japan House receberá exposições, aulas, palestras, entre outros eventos. Além disso, buscamos o máximo possível de iluminação natural, garantindo a entrada de luz do dia mesmo nos locais em que foi colocada proteção contra a insolação.
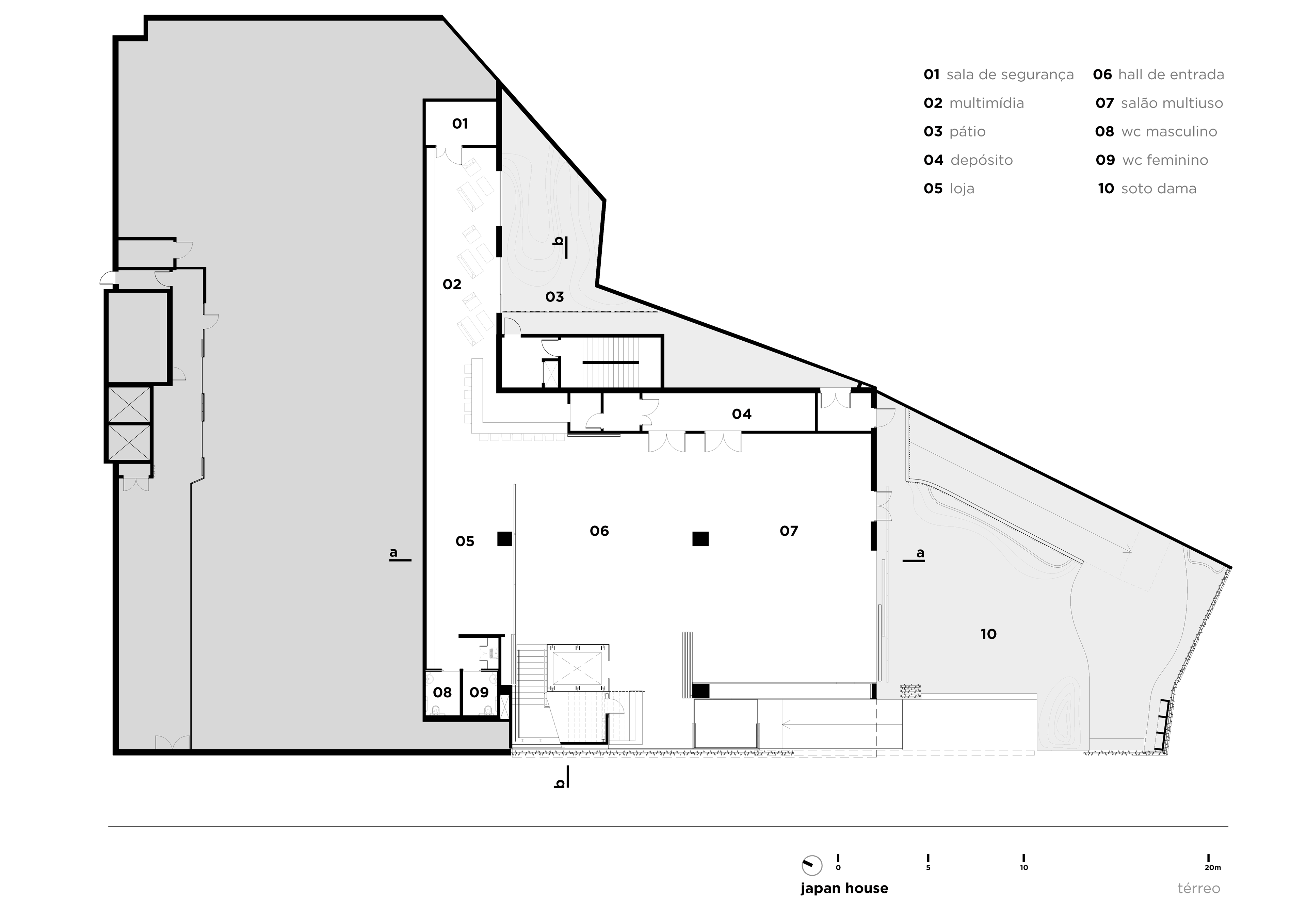
O programa foi dividido de forma muito fluida, sendo que poucas áreas foram pré-definidas, como a administração, a biblioteca, a loja e o restaurante. Os demais ambientes são bastante flexíveis. A administração, assim como o restaurante, fica no segundo andar, mas no fundo do pavimento, escondida do público. Já no primeiro pavimento estão os ateliês multiusos, que são salas com uma divisão bastante flexível, criadas para receber palestras, treinamentos e cursos relacionados à cultura japonesa.
No térreo ficam os ambientes de exposição e o café, que são abertos para a rua. Neste local, grandes portas se abrem para uma pequena praça que é quase uma continuação da praça Osvaldo Cruz e, também, uma continuação da calçada. Quando as portas da Japan House se abrem, esse espaço permite uma integração quase que absoluta dos ambientes internos e externos. A proposta do projeto é que ele permita essa flexibilidade de programas.
Centrado na figura do Japão, do ponto de vista de identidade, mas também traz uma contribuição local, não só através da nossa força de trabalho, mas também através de elementos brasileiros que foram incorporados na arquitetura.
Estruturalmente falando, as maiores intervenções foram a instalação da caixa de escada e elevadores. Com grande trabalho de reforços estruturais, de cortes de elementos para o edifício de concreto armado, que já tem décadas de existência. A premissa foi entender como era a estrutura existente.
A fachada traz uma homenagem à arquitetura modernista brasileira, por meio dos cobogós feitos de concreto com fibra de altíssimo desempenho, fino e resistente ao mesmo tempo. Além disso, a fachada também conta com madeira japonesa, fabricada e montada no Japão e remontada no Brasil, através de uma técnica milenar da cultura oriental, junto com uma tecnologia nova de fibra de carbono.
Um dos desafios do projeto foi garantir conforto térmico à edificação, uma vez que a Japan House receberá exposições, aulas, palestras, entre outros eventos. Além disso, buscamos o máximo possível de iluminação natural, garantindo a entrada de luz do dia mesmo nos locais em que foi colocada proteção contra a insolação.
O programa foi dividido de forma muito fluida, sendo que poucas áreas foram pré-definidas, como a administração, a biblioteca, a loja e o restaurante. Os demais ambientes são bastante flexíveis. A administração, assim como o restaurante, fica no segundo andar, mas no fundo do pavimento, escondida do público. Já no primeiro pavimento estão os ateliês multiusos, que são salas com uma divisão bastante flexível, criadas para receber palestras, treinamentos e cursos relacionados à cultura japonesa.
No térreo ficam os ambientes de exposição e o café, que são abertos para a rua. Neste local, grandes portas se abrem para uma pequena praça que é quase uma continuação da praça Osvaldo Cruz e, também, uma continuação da calçada. Quando as portas da Japan House se abrem, esse espaço permite uma integração quase que absoluta dos ambientes internos e externos. A proposta do projeto é que ele permita essa flexibilidade de programas.