LÍDER CAMPINAS
CAMPINAS - SP
Ficha técnica
Área do terreno - 830m²
Área construída - 2.095m²
Início do projeto - 2019
Conclusão da obra - 2025
Área construída - 2.095m²
Início do projeto - 2019
Conclusão da obra - 2025
Equipe
Autores - Fernando Forte, Lourenço Gimenes, Rodrigo Marcondes Ferraz
Gerentes - Desyree Niedo, Gabriel Mota, Sonia Gouveia, Talita Broering
Coordenadores - Philippe Metropolo, Priscylla Hayashi
Coordenadores - Philippe Metropolo, Priscylla Hayashi
Colaboradores - Breno Quaioti, Bruno Suman, Daniela Zavagli, François Caillat, Gabriel Baptista, Giovanna Pirovani, Guilherme Prado, Guilherme Pulvirenti, João Baptistella, Karina Nakaura, Maíra De Benedetto, Mariana Sarto, Victor Lucena, Victoria Ananyan
Estagiários - Ana Paula Sapia, Henrique Dias, José Carlos Navarro, Michelle Vasques
Estagiários - Ana Paula Sapia, Henrique Dias, José Carlos Navarro, Michelle Vasques
Fotógrafo - Manuel Sá
Construtora - Sigla Engenharia
Paisagista - Juliana Freitas
Lighting designer - Castilha
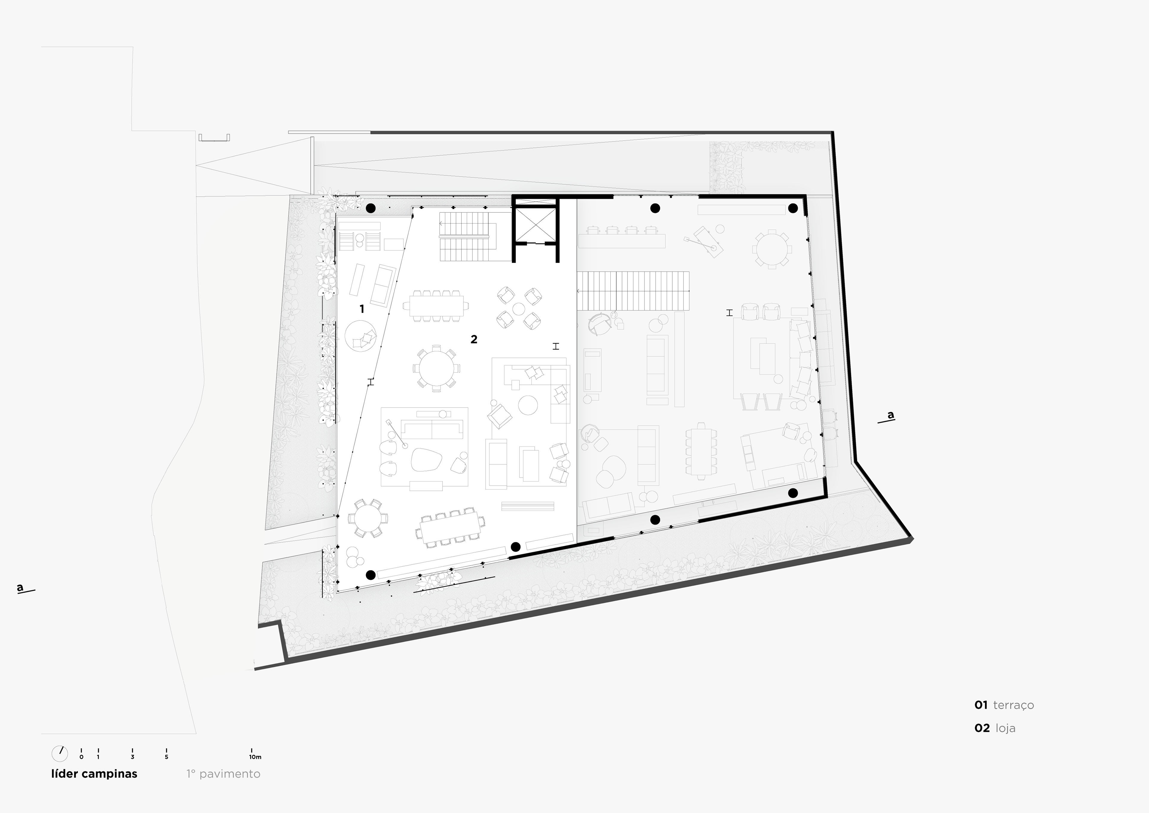
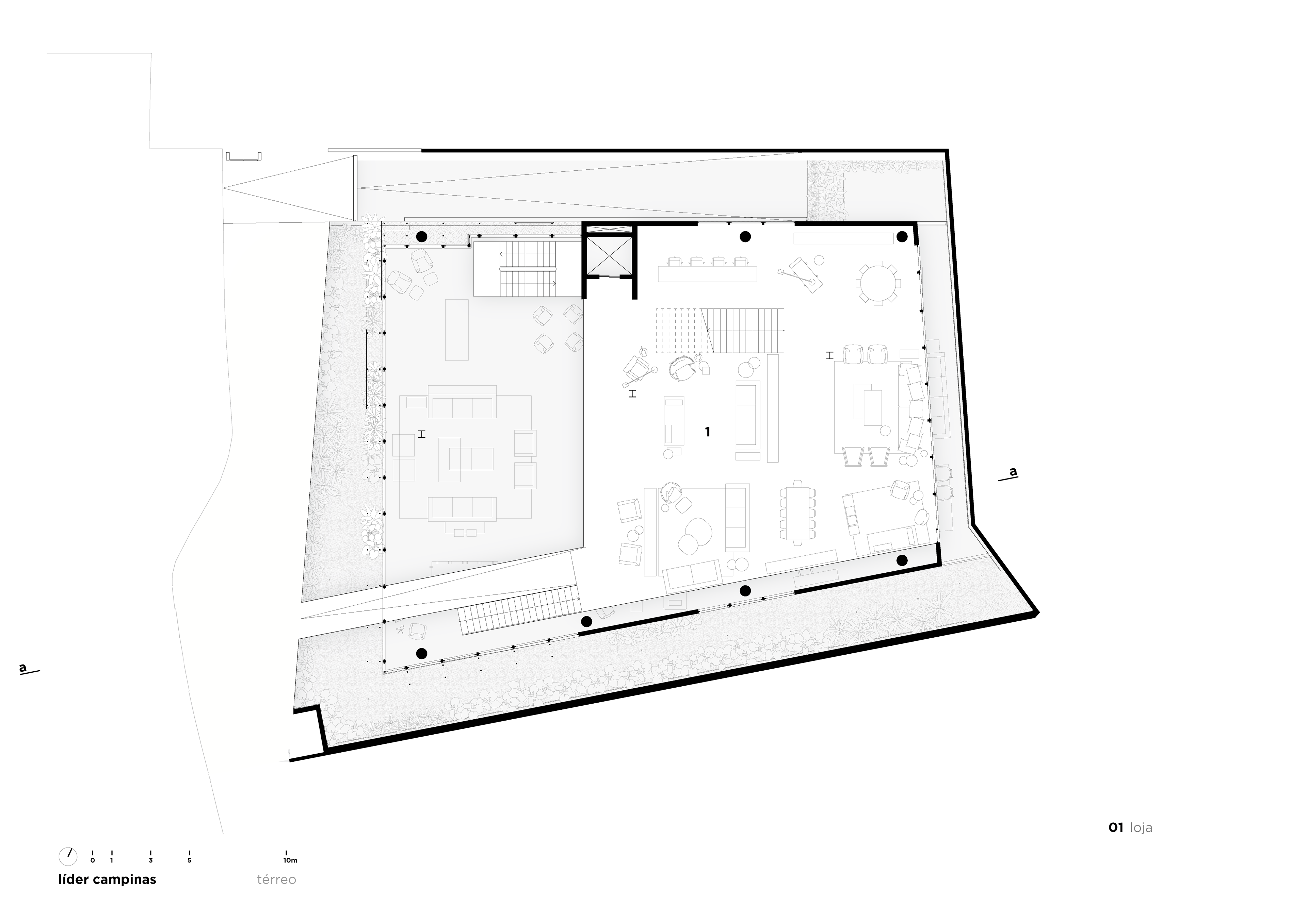
Em um lote urbano em via movimentada na cidade de Campinas, implantamos a nova loja da Lider Interiores, uma tradicional marca de mobiliário brasileiro.
Com a necessidade de uma loja grande, potencial construtivo alto e grandes espaços sem divisões para constantes alterações de layout típicas de showroom, organizamos uma estrutura periférica primária em concreto, com robustos pilares e uma grande viga no último andar. A estrutura secundária, presa a estrutura de concreto aparente, é metálica, o que possibilitou os grandes vãos e mezaninos suspensos.
Propusemos a entrada pelo primeiro piso, através de uma singela passarela que permite o pedestre visualizar por cima o grande pavimento térreo rebaixado, aberto para os jardins laterais. Essa passarela chega em mezaninos ligeiramente elevados entre si sob um átrio central que faz com que o visitante já veja o próximo andar (que conta com uma varanda frontal) e o terceiro andar, instigando o passeio por toda a loja. Na cobertura um rooftop bastante aberto complementa a proposta para criar um espaço de eventos e lançamentos relacionados a marca.