MARIMEX
SANTOS - SP
Ficha técnica
Área do terreno - 5.160m²
Área construída - 4.410m²
Início do projeto - 2014
Conclusão da obra - 2022
Área construída - 4.410m²
Início do projeto - 2014
Conclusão da obra - 2022
Equipe
Autores - Fernando Forte, Lourenço Gimenes, Rodrigo Marcondes Ferraz
Gerentes - Sonia Gouveia
Colaboradores - Caroline Endo, Daniela Zavagli, Fernanda Veríssimo, Juliana Cadó, Wanessa Simoe, Rodrigo de Moura, Tatiane Garcia
Estagiários - Alessandra Musto, Yara Bello
Estagiários - Alessandra Musto, Yara Bello
Fotógrafo - Fran Parente
Paisagista - Gil Fialho
Lighting designer - Castilha
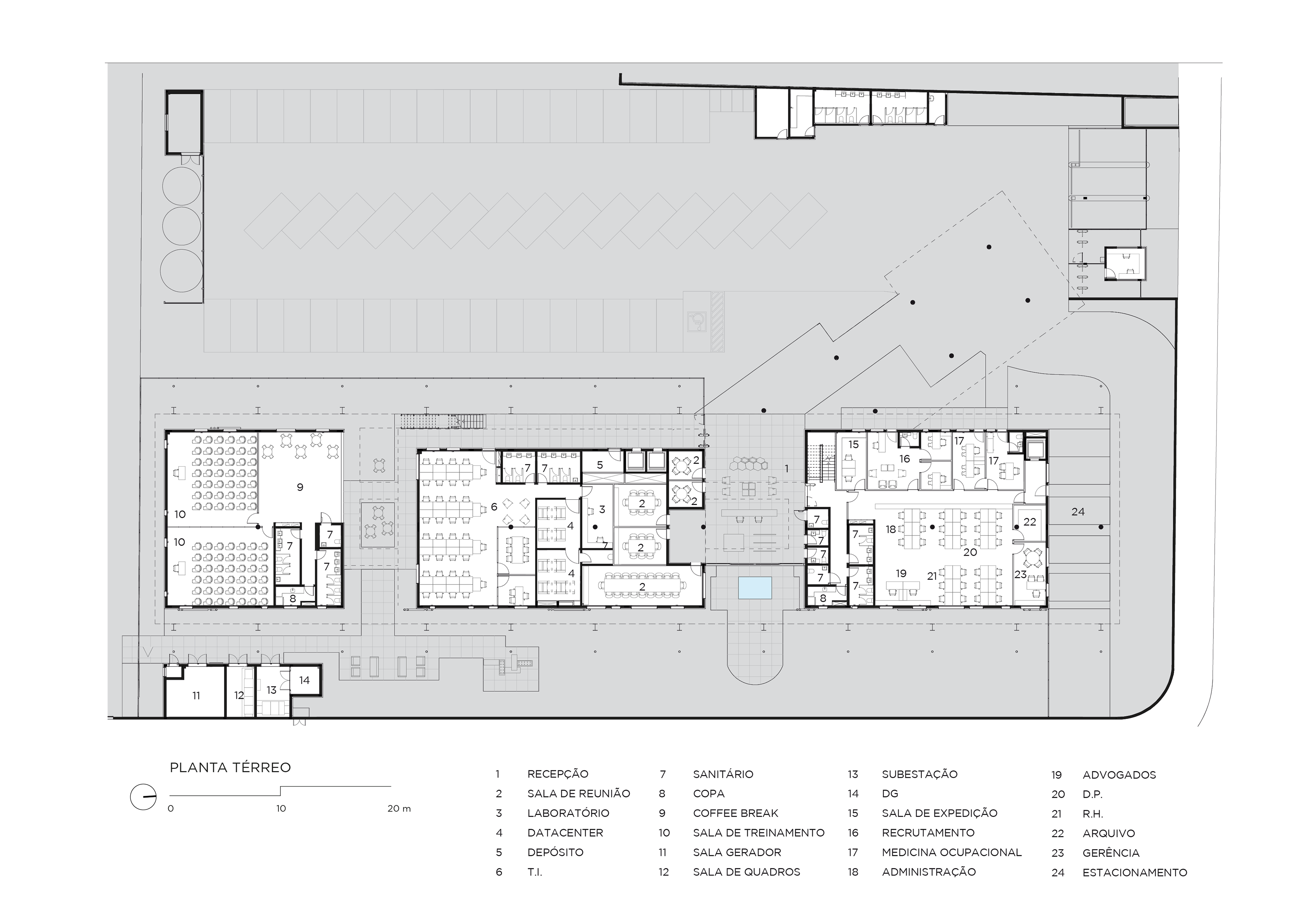
Localizado ao lado do porto de Santos, este edifício traz em sua arquitetura a estética do armazém e do container, elementos intrínsecos da forma de atuação da empresa de inteligência portuária Marimex, que realiza transportes marítimos e rodoviários, entre outras atividades.
Desta forma, o objetivo para o prédio foi abrigar cerca de quinhentos funcionários em um edifício confortável e adequado às diversas atividades da empresa e transmitir, através de uma arquitetura inovadora, os princípios e a identidade da empresa.
A lógica construtiva do edifício é a construção de uma grande cobertura apoiada em pilares e vigas metálicas e que abriga uma série de volumes com estrutura de concreto abaixo de si. Esses volumes são empilhados de modo quase que randômico, deixando buracos entre si, onde se situam varandas e vazios. Os volumes fechados abrigam os diversos departamentos da empresa, enquanto as varandas são ao mesmo tempo espaços de lazer e pulmão para futuras ampliações dos escritórios.