moou
São Paulo - SP
Ficha técnica
Área do terreno - 1.200m²
Área construída - 6.477m²
Início do projeto - 2014
Conclusão da obra - 2020
Área construída - 6.477m²
Início do projeto - 2014
Conclusão da obra - 2020
Equipe
Autores - Fernando Forte, Lourenço Gimenes, Rodrigo Marcondes Ferraz
Gerentes - Ana Paula Barbosa, Sonia Gouveia
Colaboradores - Alessandra Musto, Carla Bonfante, Carla Facchini, Carla Soffi, Caroline Endo, Fernanda Veríssimo, Juliana Cadó, Ligia Meirelles, Mariana Lazero, Wanessa Simoe
Estagiários - Giovanna Albuquerque, Gabriela Eberhardt, Rafael Mourão, Otavio Araújo
Fotógrafo - Fran Parente
Incorporadora e Construtora - SKR
Paisagista - Camila Vicari
Interiores - SuperLimão
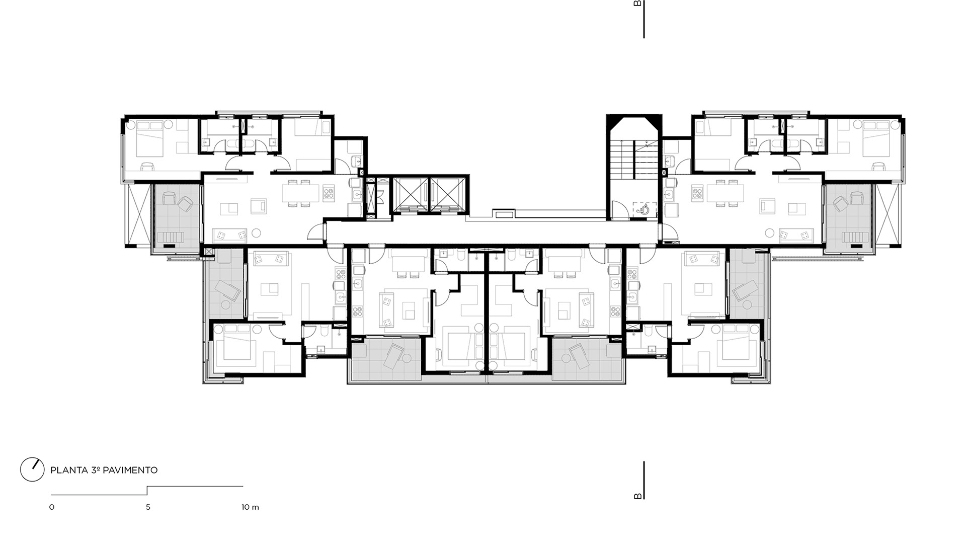
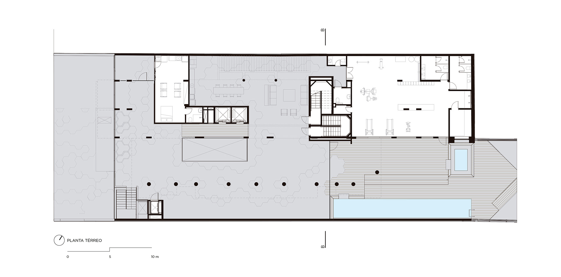
.Rua Mourato Coelho is one of the busiest streets in the bohemian neighborhood of Vila Madalena. On its last block, however, the nightlife energy gives way to a sloping street with a beautiful view toward the sunset. On this stretch, on a 1,200 m² site, we designed an eight-story building offering nine different apartment typologies.