noar
curitiba - pr
Ficha técnica
Área do terreno - 1.370m²
Área construída - 15.000m²
Início do projeto - 2023
Conclusão da obra - em obras
Área construída - 15.000m²
Início do projeto - 2023
Conclusão da obra - em obras
Equipe
Autores - Fernando Forte, Lourenço Gimenes, Rodrigo Marcondes Ferraz
Gerentes - Daniel Paranhos, Gabriel Mota
Coordenadores - Talita Broering, Thiago Brito
Coordenadores - Talita Broering, Thiago Brito
Colaboradores - Brunna Kronbauer, Carlos Eduardo, Daniel Cruz, Guilherme Braga, Guilherme Canadeu, Roberta Sá, Vitor Delpizzo
Estagiários - Ana Paula Sapia, Mariana Sarto
Renders - Mobius
Incorporadora - Neolar
Paisagista - Ricardo Caridin
Interiores - Giuliano Marchiorato
A rua do bairro Cabral, em Curitiba, é relativamente tranquila e arborizada. Apesar de prédios não serem uma novidade na rua, as casas remanescentes emprestam a ele uma atmosfera que quisemos transmitir ao edifício.
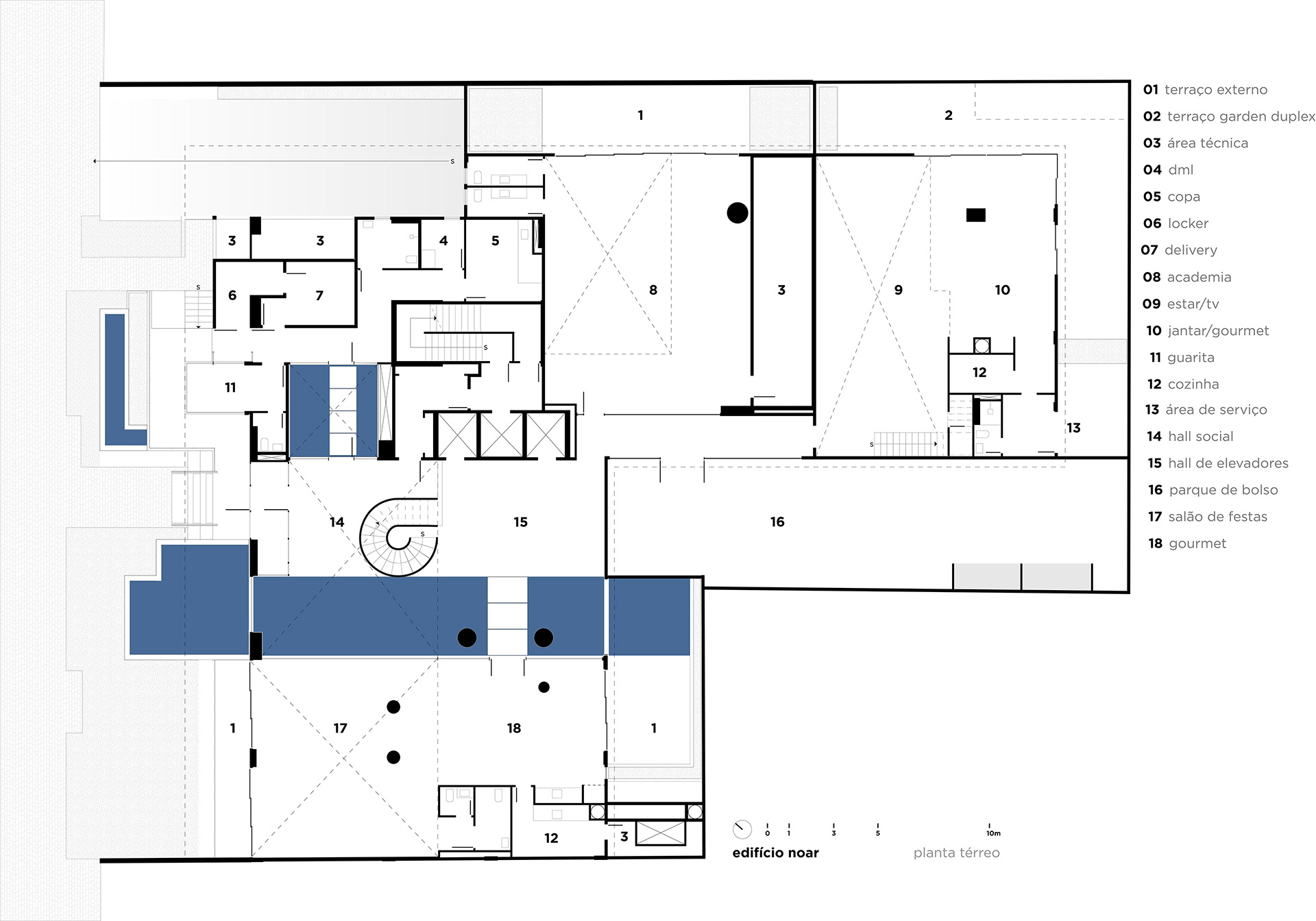
O empreendimento se oferece de maneira delicada: no térreo, ao invés de grades e muros, temos um jardim generosamente aberto para a cidade com vedação em vidro limitando, sem alarde, o acesso à área privativa. O espelho d'água que deságua junto à calçada invade o interior do térreo: ele separa o hall e o salão de festas ao mesmo tempo em que conduz o olhar transversalmente entre o interior e o exterior na frente e no fundo do lote.
Logo acima desse vazio de pé direito duplo, 53 unidades de tamanhos entre 84 e 386m² acomodam-se agrupadas em pequenos blocos de 2 ou 3 pavimentos. Dispostos uns sobre os outros, cada bloco tem geometria própria, combinando o programa e as diretrizes legais ao desejo de criar conjuntos de casas flutuantes, cercadas de terraços, vazios, pérgolas e jardins.
Como se tivéssemos reproduzido verticalmente a própria rua, o conjunto de pequenos blocos independentes resulta num objeto de volumetria variada e destoa do padrão de edifícios uniformes que comumente vemos pelas cidades brasileiras. Ao contrário do objeto claro e preciso, temos uma somatória de vazios onde a vegetação, em contraste com o concreto aparente, assume o protagonismo.
O Noar desafia a ideia de que as cidades precisam ser duras, formadas por edifícios sólidos que se contrapõem à escala do usuário. Aqui, o que chama atenção é justamente a porosidade e sutileza de uma transição gentil entre dentro e fora, e entre edifício e cidade.
O empreendimento se oferece de maneira delicada: no térreo, ao invés de grades e muros, temos um jardim generosamente aberto para a cidade com vedação em vidro limitando, sem alarde, o acesso à área privativa. O espelho d'água que deságua junto à calçada invade o interior do térreo: ele separa o hall e o salão de festas ao mesmo tempo em que conduz o olhar transversalmente entre o interior e o exterior na frente e no fundo do lote.
Logo acima desse vazio de pé direito duplo, 53 unidades de tamanhos entre 84 e 386m² acomodam-se agrupadas em pequenos blocos de 2 ou 3 pavimentos. Dispostos uns sobre os outros, cada bloco tem geometria própria, combinando o programa e as diretrizes legais ao desejo de criar conjuntos de casas flutuantes, cercadas de terraços, vazios, pérgolas e jardins.
Como se tivéssemos reproduzido verticalmente a própria rua, o conjunto de pequenos blocos independentes resulta num objeto de volumetria variada e destoa do padrão de edifícios uniformes que comumente vemos pelas cidades brasileiras. Ao contrário do objeto claro e preciso, temos uma somatória de vazios onde a vegetação, em contraste com o concreto aparente, assume o protagonismo.
O Noar desafia a ideia de que as cidades precisam ser duras, formadas por edifícios sólidos que se contrapõem à escala do usuário. Aqui, o que chama atenção é justamente a porosidade e sutileza de uma transição gentil entre dentro e fora, e entre edifício e cidade.