ON MELO ALVES
São Paulo - SP
Ficha técnica
Área do terreno - 1.590m²
Área construída - 13.320m²
Início do projeto - 2018
Conclusão da obra - 2023
Área construída - 13.320m²
Início do projeto - 2018
Conclusão da obra - 2023
Equipe
Autores - Fernando Forte, Lourenço Gimenes, Rodrigo Marcondes Ferraz
Gerentes - Daniel Paranhos, Gabriel Mota, Sonia Gouveia
Colaboradores - Ana Orefice, Ciro Dias, Fabiana Kalaigian, François Caillat, Franciele Almeida, Gilberto Sales, Guilherme Canadeu, Guilherme Prado, João Baptistella, Letícia Gonzalez, Luiz Santini, Pedro Mauger, Talita Broering, Victor Lucena
Estagiários - Caio Caccaos, Giovanna Custódio, Henrique Dias, Mariana Sarto, Michelle Vasques, Raquel Gregorio
Fotógrafo - Fran Parente
Incorporadora - Vitacon
Construtora - Rocontec
Paisagista - Tagu
Estamos em plena avenida Rebouças, um eixo de São Paulo que tem vivenciado um grande impulso de adensamento e verticalização. Neste trecho próximo à paulista, a farta oferta de transporte público, com duas linhas de metrô e um corredor de ônibus, o grande complexo hospitalar das Clínicas e a ampla diversidade de usos, o bairro se configura como um espaço dinâmico e pujante da metrópole.
Por causa disso tudo, ter à disposição um lote com duas frentes (uma para a Rebouças e outra para a rua Melo Alves) representa uma grande oportunidade de criar mais conexões urbanas e potencializar a vida urbana com espaços públicos e comerciais. O projeto do ON começa dessa reflexão: como transformar o térreo do edifício num espaço urbano, aberto e conectado com as duas ruas? A estreita abertura de 12m para a rua Melo Alves se impõe como um desafio, mas não como obstáculo. Ali, um espaço comercial ativa a calçada e indica o início de uma passagem que leva até a Rebouças. Na avenida, por sua vez, a ampla frente permite mais usos comerciais e uma pequena praça coberta que permite uma desaceleração do ritmo de quem vem da Rebouças. O hall da torre residencial acontece acima dessa pequena praça, deslocado do térreo e, assim, cedendo espaço ao público.
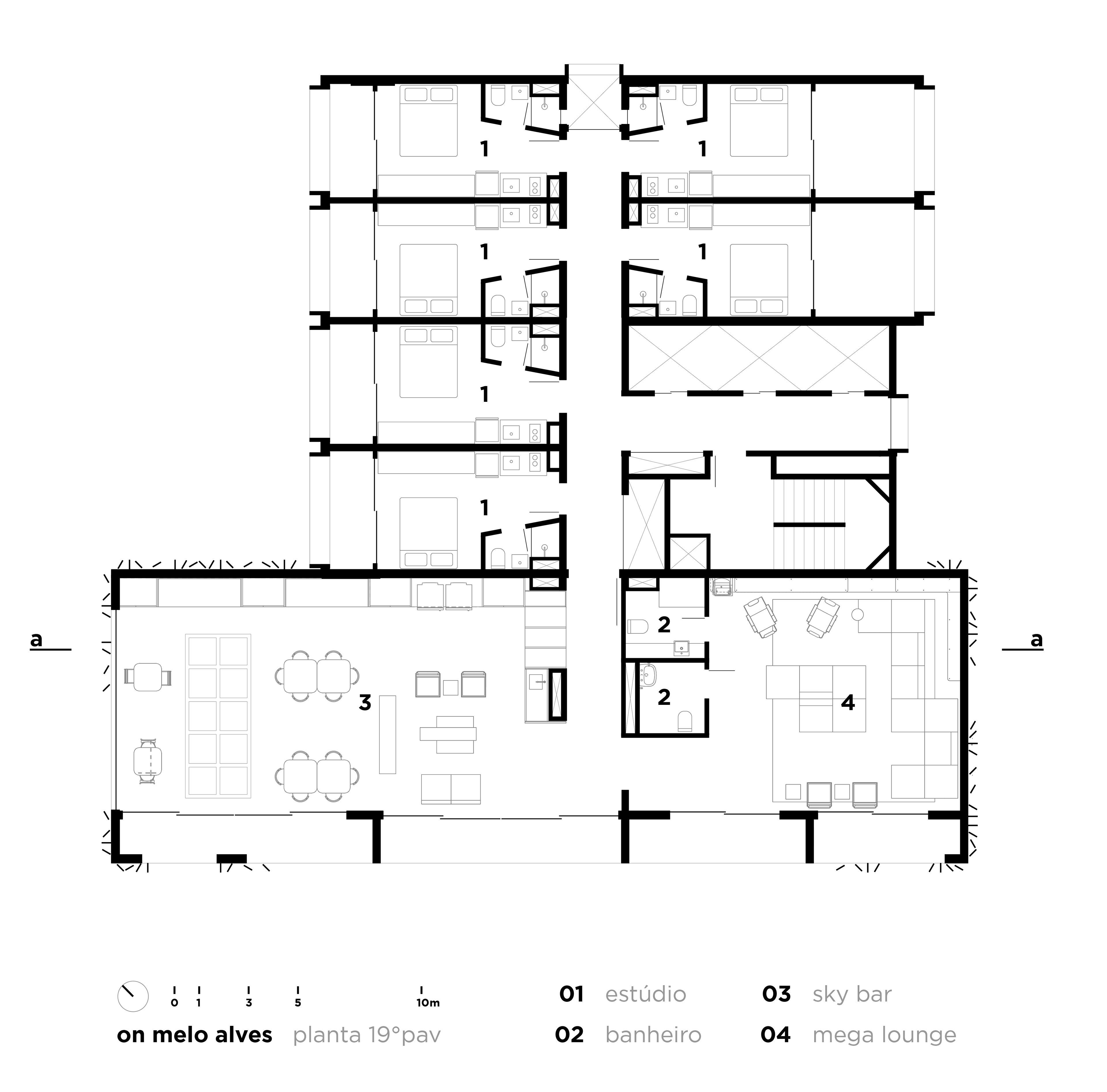
Acima deste térreo permeável e dinâmico, temos uma enorme torre de pequenos apartamentos. Parte deles destinam-se ao uso de locações temporárias, como um hotel. As demais unidades, de tamanho similar, no formato estúdio. Como são muitos apartamentos e todos de pequeno tamanho, foi uma opção natural tirar partido da repetição e do ritmo das aberturas no volume. Assim, a sucessão de aberturas no volume principal, marcadas por molduras, permite a leitura do programa.
A torre sobe até cerca de 90m de altura. Com isso, os afastamentos laterais progressivos impostos pela legislação impõem pavimentos menores nos trechos mais altos do edifício. Como resposta, o projeto prevê três volumes que crescem transversalmente. Como consequência, recupera-se a área perdida pelos afastamentos laterais, e ao mesmo tempo cria-se uma clara ruptura formal na homogeneidade da torre. Esses grandes blocos horizontais, revestidos de elementos de sombreamento, desafiam a linguagem do que se imagina para um edifício residencial. Com isso, temos na paisagem da avenida um edifício notável e original.
Os blocos horizontais são viabilizados por uma estrutura de concreto armado convencional, mesmo considerando-se o grande balanço, com inusuais 7,5m. Não há protensão ou uso de técnicas híbridas ou mistas com aço, mas tivemos o desafio de viabilizar o escoramento, devido à geometria proposta.
Ao final, temos um edifício que, apesar de ser um grande objeto na paisagem urbana, configura um elemento curioso e ousado. E, na escala do pedestre, temos um edifício permeável, generoso, humano. A dualidade entre essas duas escalas é algo valioso neste projeto.